| 価格 | 2,990万円 ![]() |
||||
|---|---|---|---|---|---|
| 所在地 | 東京都葛飾区水元5丁目
この地域周辺の物件を見る |
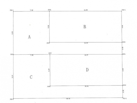
土地面積 | 108.86m² (32.93坪) | 坪単価 | 90.8万円 /坪 |
| 交通 | JR常磐線 金町 水元そよかぜ園 バス17分 停歩4分
京成金町線 京成金町 徒歩37分 |
建ぺい率 | 50 % | 容積率 | 150 % |
電話をかける(携帯・PHS可)
0120-000-973
「ホームページを見た」とお伝え下さい。
お問い合わせ番号をお伝えください
RHS-991005261
| 特徴 |
|
|---|---|
| セールスコメント | 道路斜線 北側斜線 高さ制限12m 特定都市河川浸水被害対策法 景観法 準防火地域 第1種高度地区 宅地造成及び特定盛土等規制法 日影規制:4h-2.5h/1.5m 葛飾水元付近土地区画整理事業(施行すべき区域)、53条の届出要 土地面積:路地状部分約39平米含 建築条件:なし、路地状部分面積:39平米 |
| 建築条件 | - | 土地権利 | 所有権 |
|---|---|---|---|
| 現況/引渡し | 更地/相談 | 接道状況 | 接道: 東 公道 道路幅: 9.6m |
| 私道負担面積 | - | セットバック | なし |
| 地勢 | 地目 | 雑種地 | |
| 用途地域 | 第二種低層住居専用地域 | 都市計画 | 市街化区域 |
| 法令上の制限 | - | 国土法届出 | 不要 |
| 取引態様 | 仲介 | ||
| 情報更新日 | 2026年04月20日 | 次回更新日 | 2026年05月04日 |
| 小学校区 | () |
中学校区 | () |
|---|
電話をかける(携帯・PHS可)
0120-000-973
「ホームページを見た」とお伝え下さい。
お問い合わせ番号をお伝えください
RHS-991005261
| 価格 | 万円 | ||
|---|---|---|---|
| 年利率 | % |
||
| ボーナス払い | 返済年数 | ||
| 頭金 | 直接入力する | 万円 | |

毎月のご返済額 |
ボーナス(×年2回) |
物件価格2,990万円 |
![]() |
![]() |
葛飾区水元5丁目
2990万円〜3290万円 |
電話でお問い合わせ
MEマイホーム計画京葉株式会社
|
電話をかける 0120-000-973 ※「ホームページを見た」とお伝えください。 |
お問い合わせ番号をお伝えください RHS-991005261 |
|---|
-