| 価格 | 7,590万円 ![]() |
||||
|---|---|---|---|---|---|
| 所在地 | 千葉県浦安市海楽1丁目
この地域周辺の物件を見る |
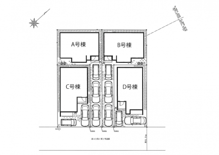
土地面積 | 95.27m² (28.82坪) | 建物面積 | 96.88u |
| 築年月 | 2026年5月築 | 間取り | 3SLDK (-) | ||
| 交通 |
JR京葉線 新浦安 徒歩18分
JR京葉線 市川塩浜 徒歩34分 |
||||
電話をかける(携帯・PHS可)
0120-000-973
「ホームページを見た」とお伝え下さい。
お問い合わせ番号をお伝えください
RHS-991001365
| 特徴 |
|
|---|---|
| セールスコメント | 日影規制:4h-2.5h/1.5m 法第22条区域 宅地造成等工事規制区域 景観法 航空法 |
| 採光面 | - | 構造/階数 | 木造/地上2階建 |
|---|---|---|---|
| 建ぺい率 | 60(%) | 容積率 | 150(%) |
| 駐車場 | 有 | 現況/引渡し | -/2026年6月上旬 |
| 土地権利 | 所有権 | 私道負担面積 | - |
| 接道状況 | 接道: 東南 公道 道路幅: 5m | 用途地域 | 第一種低層住居専用地域
|
| セットバック | なし | 法令上の制限 | - |
| 地目 | 雑種地 | 地勢 | |
| 建築確認番号 | 第HPA-26-01615-1号 | 都市計画 | 市街化区域 |
| 取引態様 | 仲介 | ||
| 情報更新日 | 2026年04月17日 | 次回更新日 | 2026年05月01日 |
| 小学校区 | 浦安市立東小学校 (千葉県浦安市) この学区の他の物件を見る |
中学校区 | 浦安中学校 (千葉県浦安市) この学区の他の物件を見る |
|---|
電話をかける(携帯・PHS可)
0120-000-973
「ホームページを見た」とお伝え下さい。
お問い合わせ番号をお伝えください
RHS-991001365
| 価格 | 万円 | ||
|---|---|---|---|
| 年利率 | % |
||
| ボーナス払い | 返済年数 | ||
| 頭金 | 直接入力する | 万円 | |

毎月のご返済額 |
ボーナス(×年2回) |
物件価格7,590万円 |
![]() |
![]() |
浦安市海楽1丁目
6990万円〜7590万円 |
電話でお問い合わせ
MEマイホーム計画京葉株式会社
|
電話をかける 0120-000-973 ※「ホームページを見た」とお伝えください。 |
お問い合わせ番号をお伝えください RHS-991001365 |
|---|
-