| 価格 | 4,580万円 ![]() |
||||
|---|---|---|---|---|---|
| 所在地 | 千葉県船橋市芝山5丁目
この地域周辺の物件を見る |
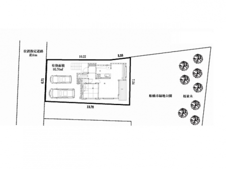
土地面積 | 114.44m² (34.62坪) | 建物面積 | 91.85u |
| 築年月 | 2026年4月築 | 間取り | 4LDK (-) | ||
| 交通 |
東葉高速鉄道 飯山満 徒歩12分
新京成電鉄 高根公団 徒歩19分 |
||||
電話をかける(携帯・PHS可)
0120-000-973
「ホームページを見た」とお伝え下さい。
お問い合わせ番号をお伝えください
RHS-990984260
| 特徴 |
|
|---|---|
| セールスコメント |
| 採光面 | - | 構造/階数 | 木造/地上2階建 |
|---|---|---|---|
| 建ぺい率 | 50(%) | 容積率 | 100(%) |
| 駐車場 | 有 | 現況/引渡し | -/2026年5月下旬 |
| 土地権利 | 所有権 | 私道負担面積 | - |
| 接道状況 | 接道: 西 私道 道路幅: 4m | 用途地域 | 第一種低層住居専用地域
|
| セットバック | なし | 法令上の制限 | - |
| 地目 | - | 地勢 | |
| 建築確認番号 | 第25UDI1C建05141号 | 都市計画 | - |
| 取引態様 | 仲介 | ||
| 情報更新日 | 2026年02月06日 | 次回更新日 | 2026年02月20日 |
| 小学校区 | () |
中学校区 | () |
|---|
電話をかける(携帯・PHS可)
0120-000-973
「ホームページを見た」とお伝え下さい。
お問い合わせ番号をお伝えください
RHS-990984260
| 価格 | 万円 | ||
|---|---|---|---|
| 年利率 | % |
||
| ボーナス払い | 返済年数 | ||
| 頭金 | 直接入力する | 万円 | |

毎月のご返済額 |
ボーナス(×年2回) |
物件価格4,580万円 |
電話でお問い合わせ
MEマイホーム計画京葉株式会社
|
電話をかける 0120-000-973 ※「ホームページを見た」とお伝えください。 |
お問い合わせ番号をお伝えください RHS-990984260 |
|---|
-