| 価格 | 3,380万円値下がり ![]() |
||||
|---|---|---|---|---|---|
| 所在地 | 千葉県佐倉市王子台5丁目
この地域周辺の物件を見る |
土地面積 | 122.1m² (36.94坪) | 建物面積 | 101.85u |
| 築年月 | 2025年4月築 | 間取り | 3LDK (-) | ||
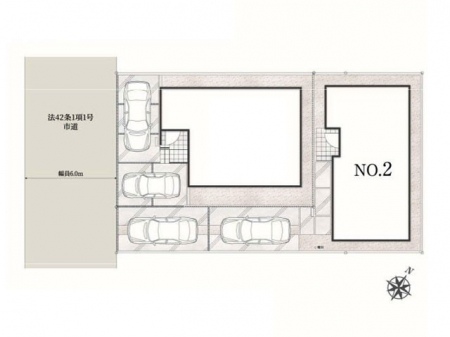
| 交通 |
京成本線 京成臼井 徒歩10分
山万ユーカリが丘線 ユーカリが丘 徒歩32分 |
||||
電話をかける(携帯・PHS可)
0120-000-973
「ホームページを見た」とお伝え下さい。
お問い合わせ番号をお伝えください
RHS-990982180
| 特徴 |
|
|---|---|
| セールスコメント | 法第22条区域 宅地造成法規制区域 用途地域:一部第2種住居地域(建50%/容100%) 土地面積:路地状部分約38平米含 路地状部分面積:38平米 |
| 採光面 | - | 構造/階数 | 木造/地上2階建 |
|---|---|---|---|
| 建ぺい率 | 50(%) | 容積率 | 100(%) |
| 駐車場 | 有 | 現況/引渡し | 空家/即時 |
| 土地権利 | 所有権 | 私道負担面積 | - |
| 接道状況 | 接道: 南西 公道 道路幅: 6m | 用途地域 | 第一種低層住居専用地域
|
| セットバック | なし | 法令上の制限 | - |
| 地目 | 宅地 | 地勢 | |
| 建築確認番号 | 第24UDI1C建04934号 | 都市計画 | 市街化区域 |
| 取引態様 | 仲介 | ||
| 情報更新日 | 2025年12月14日 | 次回更新日 | 2025年12月28日 |
| 小学校区 | 佐倉市立王子台小学校 (千葉県佐倉市) この学区の他の物件を見る |
中学校区 | 臼井西中学校 (千葉県佐倉市) この学区の他の物件を見る |
|---|
電話をかける(携帯・PHS可)
0120-000-973
「ホームページを見た」とお伝え下さい。
お問い合わせ番号をお伝えください
RHS-990982180
| 価格 | 万円 | ||
|---|---|---|---|
| 年利率 | % |
||
| ボーナス払い | 返済年数 | ||
| 頭金 | 直接入力する | 万円 | |

毎月のご返済額 |
ボーナス(×年2回) |
物件価格3,380万円 |
電話でお問い合わせ
MEマイホーム計画京葉株式会社
|
電話をかける 0120-000-973 ※「ホームページを見た」とお伝えください。 |
お問い合わせ番号をお伝えください RHS-990982180 |
|---|
-